2022-12-21消失模烘干除湿机,消失模烘干均匀不开裂
众所周知,在国内很多铸造厂的加工生产中,消失模铸造工艺的应用是极为广泛的;据了解,在消失模铸造中,影响铸件质量、尺寸精度的因素是多方面的,比如消失模铸件本身的结构、形状、大小,泡沫塑料质量的影响,涂料涂层的影响,消失模烘干的影响以及铸造过程中造型、浇注环节的影响等。在消失模铸造工艺中,整个工艺流程包
了解详情安诗曼电器
手机:133-6050-3273
微信:133-6050-3273
地址:广东深圳坪山区青松西路8号鸿合科技园

众所周知,在国内很多铸造厂的加工生产中,消失模铸造工艺的应用是极为广泛的;据了解,在消失模铸造中,影响铸件质量、尺寸精度的因素是多方面的,比如消失模铸件本身的结构、形状、大小,泡沫塑料质量的影响,涂料涂层的影响,消失模烘干的影响以及铸造过程中造型、浇注环节的影响等。在消失模铸造工艺中,整个工艺流程包
了解详情
消失模白模烘干机,模具烘干不开裂技术动态据了解,消失模铸件具有精度高、质量好,成本低;以及铸件表面光洁,减少了清理环节,大大节省了机械加工量。为此,消失模铸造被广泛应用于铸钢、铸铁、铸铜、铸铝等各种材质、各种结构的铸件;采用可发性聚苯乙烯泡沫白模浇注铸件的工艺过程。泡沫塑料白模在液态金属浇入时迅速气
了解详情
消失模烘干机,消失模烘干注意要点:消失模铸造是现在精密铸造的主要工艺,由于使用的是石蜡、泡沫以及水性硅溶胶等熔点很低的材料来制作模具,所以在铸造过后就会消失,因此而得名。既然熔点低,那么就需要在这些模具的表面喷涂耐高温材料,这些耐高温材料在烘干后再能进行铸造,否则的话是不行了。这层涂料的作用
了解详情
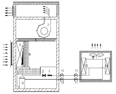
安诗曼ASM-8240G消失模烘干除湿机及安诗曼高配置系列升温加热烘干除湿一体机技术参数:安诗曼ASM-8240G消失模烘干除湿机及安诗曼高配置系列升温加热烘干除湿一体机可以在消失模烘干过程中快速去除湿气,有效降低烘干房湿度;通常,只要将烘干房内湿度度控制在30%RH左右;同时保证烘干房内温度在50
了解详情
消失模烘干设备,消失模烘干方法技术动态从事消失模铸造行业的人都知道,在消失模铸造加工过程中的涂料烘干会直接影响工厂的效率和成品的质量。为了加快用于大型模具的水溶性涂料的干燥速度,生产上的简便消失模烘干方法是将刷有涂料的
了解详情
消失模浇注反喷分析消失模涂层烘干机:消失模铸造是一种新型铸造工艺,跟传统铸造工艺相比,产品精密度高,后期加工少,更加环保清洁,深受铸造业的喜爱,是现在国内的精密铸造业用的主要浇注工艺。反喷是在消失模浇注的时候出现的一种影响产品质量甚至是危及工
了解详情
消失模涂料烘干设备,消失模涂料烘干房除湿机技术动态从事消失模铸造行业的人都知道,在消失模铸造生产中,模样涂挂涂料后的干燥工序,是关系到铸件产品质量和成本的一个重要环节,必须充分干燥才能浇注。而烘干消失模模样需要消耗大量的热量,还需要较长的时间,模样每次涂挂涂料后,
了解详情
消失模模样干燥房除湿机,消失模模样干燥方法技术动态据了解,消失模模样干燥的能耗是整个消失模铸造过程中能耗的一个重要部分。在某一地域影响模样干燥的因素主要取决于干燥室的湿度、温度和干燥室内空气对流的速度。相对较低的湿度和适当的温度以及室内快的风速有利于模样的干燥。适用于中小铸造车间的消失模模样干燥室、
了解详情
消失模模具烘干房除湿机,干得快、不开裂、成本低、更环保!【技术动态】众所周知,消失模铸造,又称实型铸造。现如今,随着消失模的应用领域不断扩大,消失模铸造技术的优势体现的越来越明显。由于经此技术铸造出来的铸件精度高、加工余量小、内部质量好、成本低;为此,近年来越来越多的中小铸造厂纷纷引进了消失模铸造技
了解详情
涂装专用除湿机,有机的结合了冷冻除湿与转轮除湿两种除湿方式,是设计先进、运行经济的四季智能型空气处理设备。随着我国工业的快速发展,在船舶制造、汽车制造、钢结构制造等众多行业对产品的涂装要求越来越高,涂装专用除湿机出开始得到应用。在涂装生产工艺中主要以喷砂喷漆为主,而在这些工艺中有效解决金属表面氧化问
了解详情
调温除湿机用蒸发器来给空气降温除湿,并回收系统的冷凝热,弥补空气中因为冷却除湿时散失的热量,是一种高效节能的除湿方式,已经广泛应用于国防工程、人防工程、烟草及石化行业、地铁车站、航天领域净化工程、实验室、
了解详情
产品的外观质量不仅反映了产品的保护和装饰性能,也是构成产品价值的重要因素,喷涂过程中如果温度和湿度控制不好,次品率会增高,生产效率会下降,给企业带来不小的损失,涂装车间应如何配置温湿度设备?喷砂和喷涂是最常用的涂装方法,这些方法有效地解决了金属表面的氧化问题。A的方法是使用转轮除湿机来控制涂层环境中
了解详情
涂装车间除湿机,汽车涂装车间除湿方案新闻资讯报道:在汽车车身的制作过程中,涂装工艺是其中较为重要的工序之一;而涂装质量的好坏与车间环境内部的温湿度,洁净度等因素有着直接的关系,而其中在很大程度上取决于车间环境空气湿度的变化。要保证涂装质量、获得最佳的涂层
了解详情
涂装车间干雾加湿器确保漆面光滑靓丽:涂装跟喷涂是同一回事,简单的说就是给物体表面喷涂漆料,起到防腐的作用,当然了也可以让物体表面更加美观,在家具、汽车、空调等行业都有很大的作用。要想涂装表面光滑不起泡,那么空气中的灰尘颗粒需要控制好,因为只要直径超过10微米的颗粒就可以在涂装表面形成可见颗粒,导致漆
了解详情
涂装车间加湿器,涂装厂车间加湿设备新闻资讯:在全国各大汽车制造企业中涂装车间是必不可少的,涂装作业是汽车车身制作过程中的一项重要工序,决定了车身整体外观的品质!而涂装质量的好坏,除了与被涂物表面处理质量、油漆的配套性以及人员、设备、技术等方面有关之外,还与涂装车间的环境有着直接的关系。因此,涂装工艺
了解详情
传统家私厂喷漆作业一般都在露天进行,但在进行喷漆过程中会把粉尘、杂质等混合在油漆里,且喷漆还会弄脏地上,污染环境;喷漆人员也会吸入许多油漆雾,而当今设备对家私出产的请求越来越高,家私厂为了确保出产出高质量的实木家私
了解详情
对于现代化的涂装线,一般都能满足恒温、恒湿和洁净的空气(空气粉尘含量为了使涂装生产线内的空气粉尘量得到有效控制,首先应改善生产线外的环境状况,将打磨、擦净工序与喷漆工序分开,避免打磨产生的粉尘进入生产线喷涂室或干燥(固化)炉,消除打磨灰尘对喷涂的影响;其次,应定期更换空气滤布,保证空气中的粉尘能有效
了解详情
涂装是铁质、木质工艺品不可或缺的工序。所谓涂装,是指在金属或非金属表面复盖保护层或装饰层。涂装车间对温度和湿度有一定的要求。如果季节性湿度过高,油漆会干燥得太慢,会导致油漆效果不佳。为了解决油漆太慢的问题,使用转轮除湿机是A的选择。在涂装生产工艺中主要以喷砂喷漆为主,转轮除湿机能降低金属表面露点温度
了解详情
涂装打磨车间需要加湿机控湿:很多行业在对产品进行加工的时候需要打磨,比如喷塑之类的,需要先将喷塑的物件表面处理好,然后才能进行喷塑作业,只有这样才能保证喷塑件表面的光滑度,保证喷塑质量,不过这里就出现了一个问题,那就是在打磨过程中会出现大量的粉尘,这些粉尘会漂浮在空气中,对喷塑作用造成影响。粉尘对喷
了解详情
涂料专用除湿机结合了两种冷冻除湿模式转轮除湿机是采用先进的设计,智能四季运行的经济,空气处理设备。之一是使用的制冷压缩机制冷除湿,空气温度低于露点,冷凝水,空气湿度较低。可用于循环水解吸压缩机冷凝热回收,热会使使除湿轮后的空气温度后,将上
了解详情